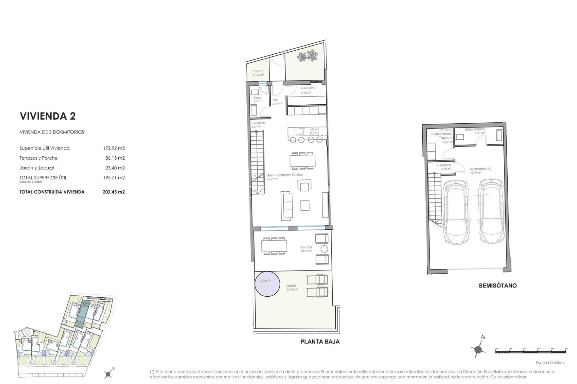
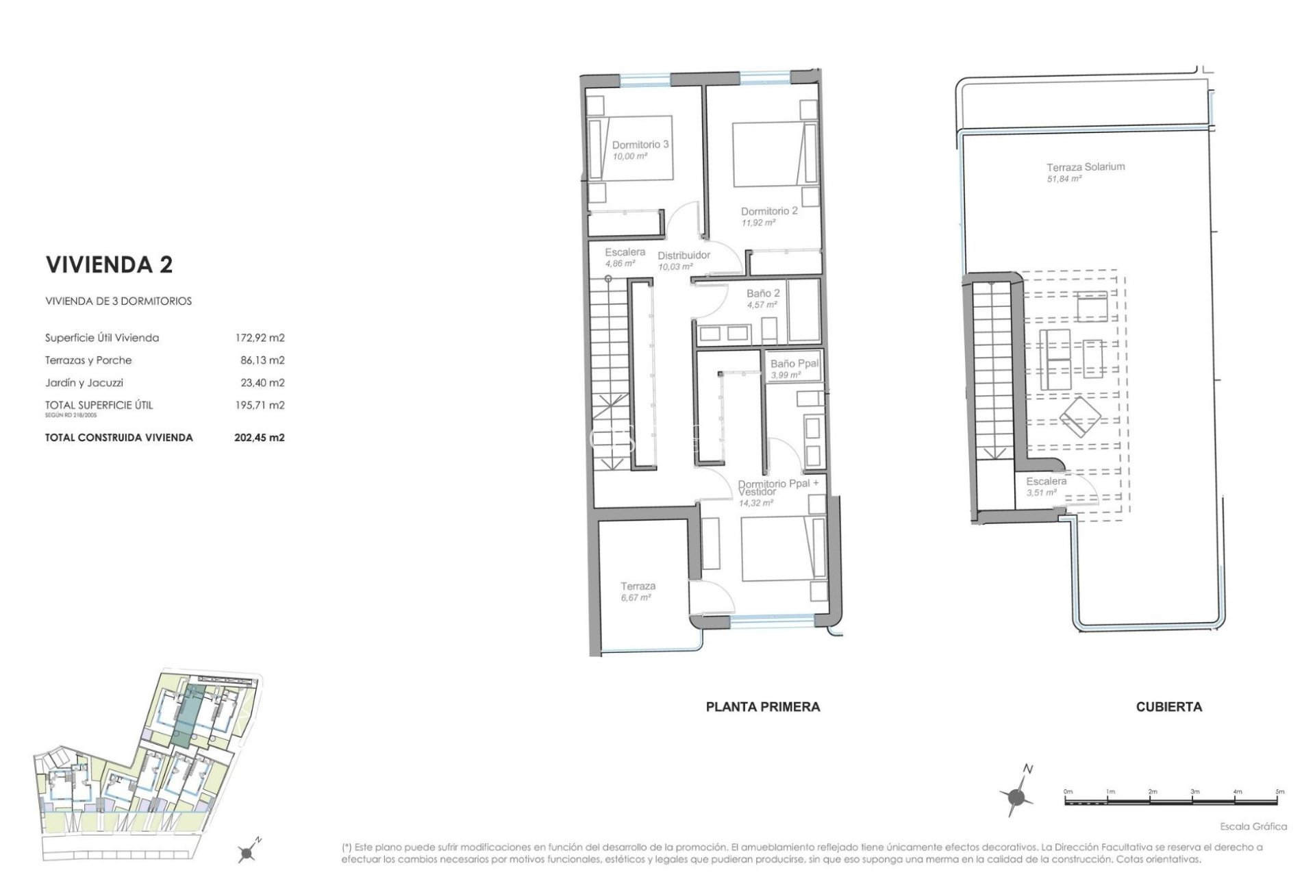
Exclusieve nieuwbouwwoningen aan het strand te koop in Mojácar, Costa de Almería Boutique wonen aan zee in een van de meest gewilde wijken van Mojácar Ontdek een uitzonderlijke residentiële boutique met slechts 10 exclusieve woningen aan het strand van La Mena in Mojácar. Deze bevoorrechte locatie biedt directe toegang via de Paseo del Mediterraneo tot het gouden zandstrand en het kristalheldere water van de Middellandse Zee. Omgeven door strandclubs, restaurants en een rustige kustactmosfeer is dit gebied ideaal voor wie op zoek is naar een verfijnde levensstijl aan zee. Mojácar Playa en de Parador de Mojácar liggen op slechts 3 km afstand en bieden een breed scala aan diensten, entertainment en natuurschoon. Elegante woningen ontworpen voor comfort en uitzicht op zee Dit unieke project biedt woningen met drie slaapkamers en drie badkamers, beschikbaar in twee configuraties. Kopers kunnen kiezen tussen vier herenhuizen met een eigen solarium en optionele jacuzzi, of zes halfvrijstaande villa's met elk een eigen zwembad. Alle woningen hebben een grote keldergarage voor twee auto's, ruime terrassen en royale tuinen die het buitenleven en het uitzicht op zee maximaliseren. Hoogwaardige specificaties en aanpassingsmogelijkheden Elke woning is uitgerust met een volledig geïnstalleerd aerothermisch airconditioningsysteem, dat het hele jaar door maximale energie-efficiëntie en comfort garandeert. De keukens zijn ongemeubileerd, zodat eigenaren hun ontwerp kunnen personaliseren, met een compleet decoratieproject inbegrepen. Extra voorzieningen zijn onder meer pre-installatie voor smart home-technologie, versterkte toegangsdeur en hoogwaardige bouwmaterialen die de veiligheid, het ontwerp en de duurzaamheid verbeteren. Toplocatie met uitstekende verbindingen Het project ligt in een rustige omgeving aan het strand en biedt gemakkelijke toegang tot belangrijke bestemmingen langs de Costa de Almería. Mojácar Pueblo, met zijn pittoreske witgekalkte straatjes, ligt op slechts een klein eindje rijden. Populaire bezienswaardigheden zijn onder andere: Mojácar Playa 3 km Parador de Mojácar 3 km Marina de Garrucha 12 km Campo de golf Marina Golf 6 km Aeropuerto de Almería 80 km Aeropuerto de Murcia Corvera 150 km Verzeker uzelf van een huis aan het strand in Mojácar Ervaar een levensstijl waarin de zee deel uitmaakt van uw dagelijkse routine en luxe samengaat met de rust van de kust. Of u nu op zoek bent naar een vakantiehuis, een permanente woning of een exclusieve investering, dit boetiekproject aan het strand biedt ongeëvenaarde waarde. Neem vandaag nog contact met ons op voor meer informatie of om een bezichtiging te regelen.