Fermer Fermer

Mojacar · Playa de la Mena Maison · Nouvelle construction

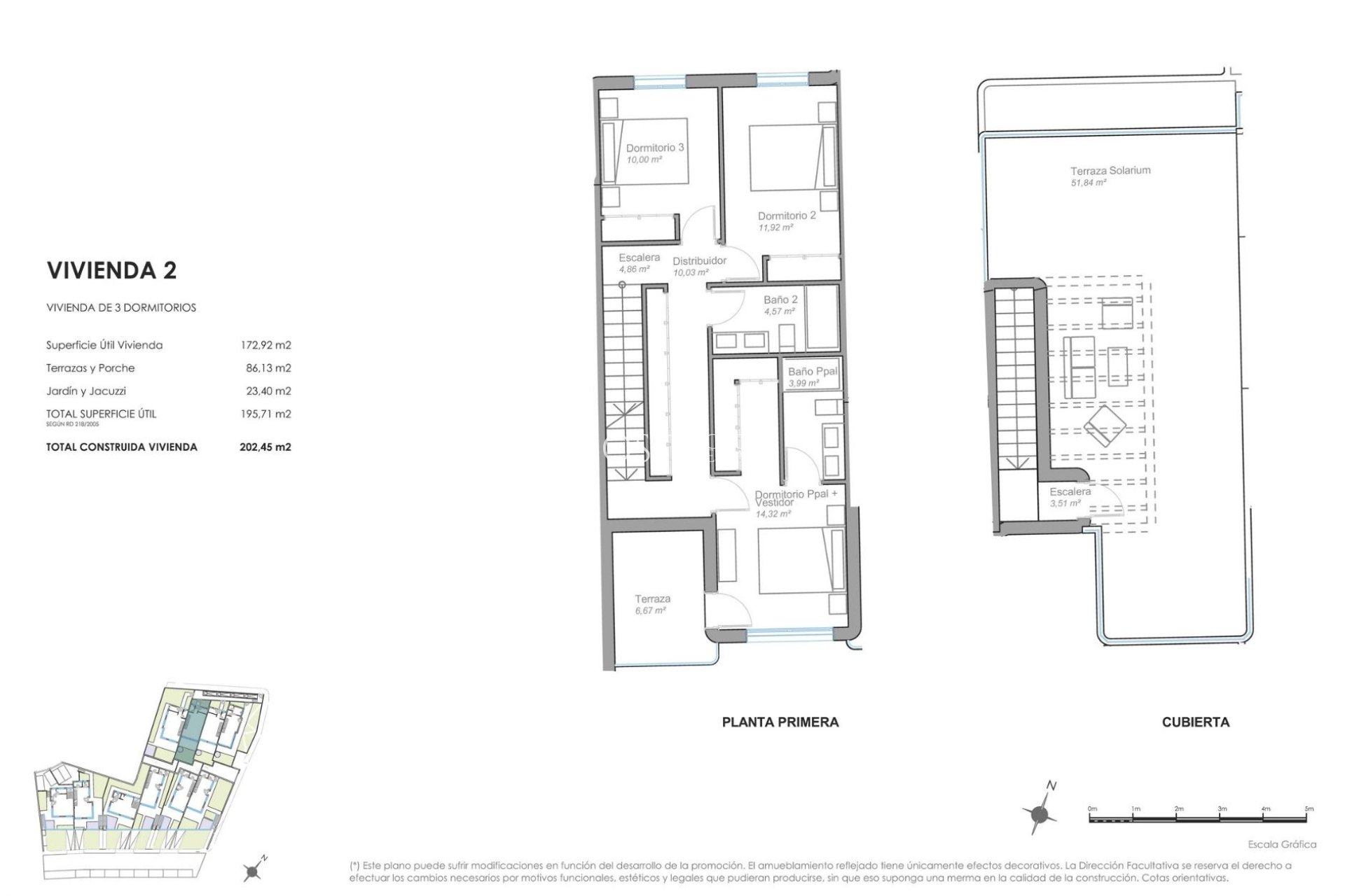
#Réf.: NB-74051
€ 575.000
  • Construit 172m2
  • Intrigue 34m2
  • Chambres 3
  • Salles de bain 3

Mojacar · Playa de la Mena Maison · Nouvelle construction

La description

Maisons neuves exclusives en bord de mer à vendre à Mojácar, Costa de Almería

Les caractéristiques

Chambres: 3
Salles de bain: 3
Construit: 172m2
Utile: 160m2
Intrigue: 34m2
Distance à la plage: 100 Mts.
Toilet: 1
Garden
Gated
Solarium: Yes
Location: Coastal, Urbanisation
Near Schools
Near Commercial Center
Double Bedrooms: 3
First Line to the Sea
Views: Sea
Number of Parking Spaces: 2
Terrace: 75 Msq.
Parking - Space
Beach: 30 Meters
Useable Build Space: 160 Msq.
Storage / Trastero

Emplacement

Demande d'information

Contact avec Costa Group Estates

Responsable del tratamiento: VDM ESTATES GROUP SL, Finalidad del tratamiento: Gestión y control de los servicios ofrecidos a través de la página Web de Servicios inmobiliarios, Envío de información a traves de newsletter y otros, Legitimación: Por consentimiento, Destinatarios: No se cederan los datos, salvo para elaborar contabilidad, Derechos de las personas interesadas: Acceder, rectificar y suprimir los datos, solicitar la portabilidad de los mismos, oponerse altratamiento y solicitar la limitación de éste, Procedencia de los datos: El Propio interesado, Información Adicional: Puede consultarse la información adicional y detallada sobre protección de datos Aquí.
WhatsApp