La Zenia Boulevard Shoppingcenter Orihuela Costa
La Zenia Boulevard, Calle Jade 2, Local 90 Alicante, Spain
+34 966 890 625 / +32 15 540 153
Marbella Golden Mile
Oasis Business Centre The Golden Mile
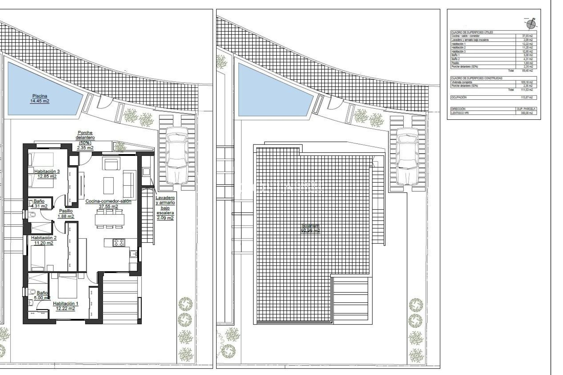
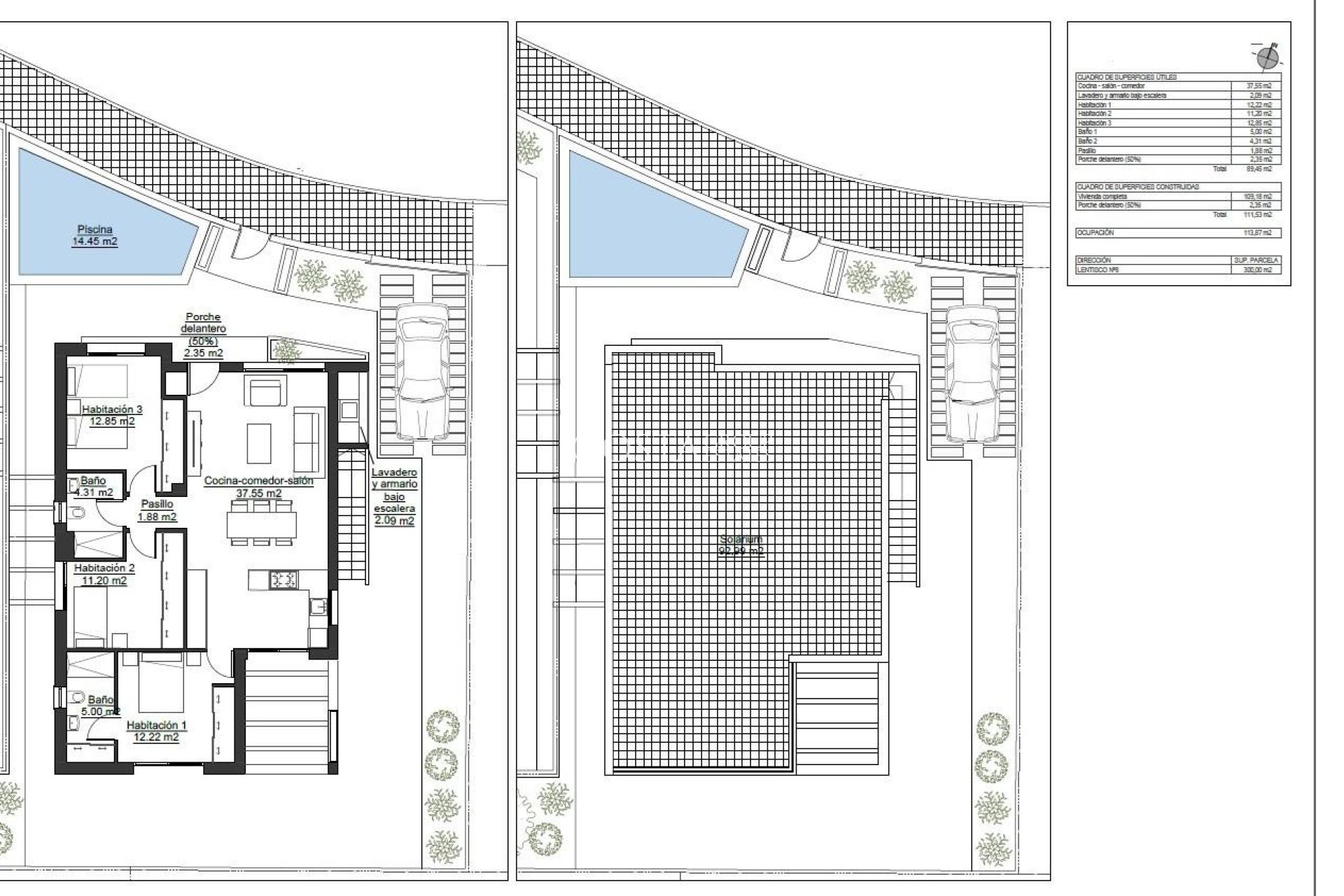
NIEUWBOUW VILLA'S IN PINAR DE CAMPOVERDE Moderne nieuwbouw villa's in Pinar de Campoverde. Kleine ontwikkeling van slechts 5 villa's, gebouwd op een verdieping met een verdeling van 3 slaapkamers en 2 badkamers, open woon- en eetkamer, volledig uitgeruste keuken, met centraal eiland en uitzicht op het privézwembad, op onafhankelijke percelen vanaf 300,00 m2. Er is ook een groot solarium om het hele jaar door te genieten van de zon en het prachtige uitzicht. De villa's liggen op een bevoorrechte locatie naast het natuurreservaat Rio Seco en vlakbij voorzieningen, sportfaciliteiten en de nabijgelegen golfbaan van Lo Romero, de Spaanse stad Pilar de la Horadada en op slechts 15 minuten rijden van de witte zandstranden van La Torre De la Horadada. De perfecte plek als je op een rustige locatie wilt zijn, midden in de natuur en dicht bij alle voorzieningen, golf en mooie stranden.
Deze informatie is hier onderhevig aan fouten en maakt geen deel uit van een contract. De aanbieding kan zonder kennisgeving worden gewijzigd of ingetrokken. Prijzen zijn exclusief aankoopkosten.
BIV No 514.440 / API No A227 / RAICV:2827 | Makelaar in Costa Blanca en Costa del Sol | Nederlandstalige Makelaar | CostaGroupEstates
La Zenia Boulevard Shoppingcenter Orihuela Costa
La Zenia Boulevard, Calle Jade 2, Local 90 Alicante, Spain
+34 966 890 625 / +32 15 540 153
Marbella Golden Mile
Oasis Business Centre The Golden Mile
Allereerst bedankt dat je contact met ons hebt opgenomen.
Allereerst bedankt dat je contact met ons hebt opgenomen.
We hebben een aanvraag voor een rapport ontvangen als u de prijs van het onroerend goed met de referentie verlaagt: NB-87255
Bekijk in de tussentijd eens een selectie van vergelijkbare woningen die voor u van belang kunnen zijn: