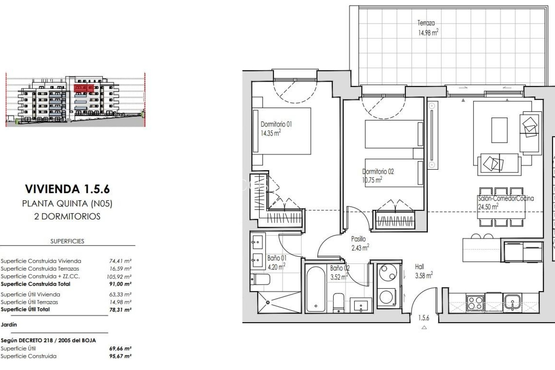
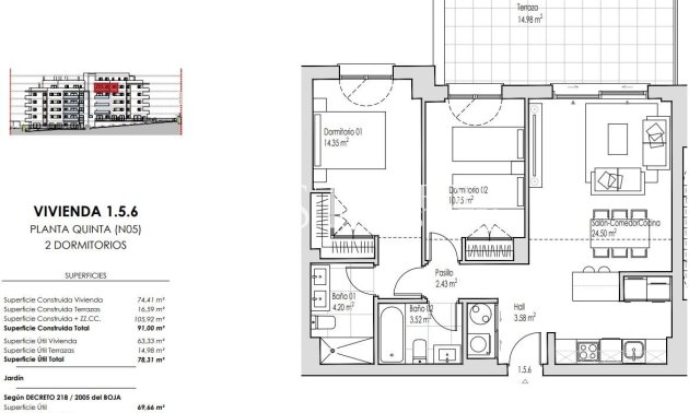
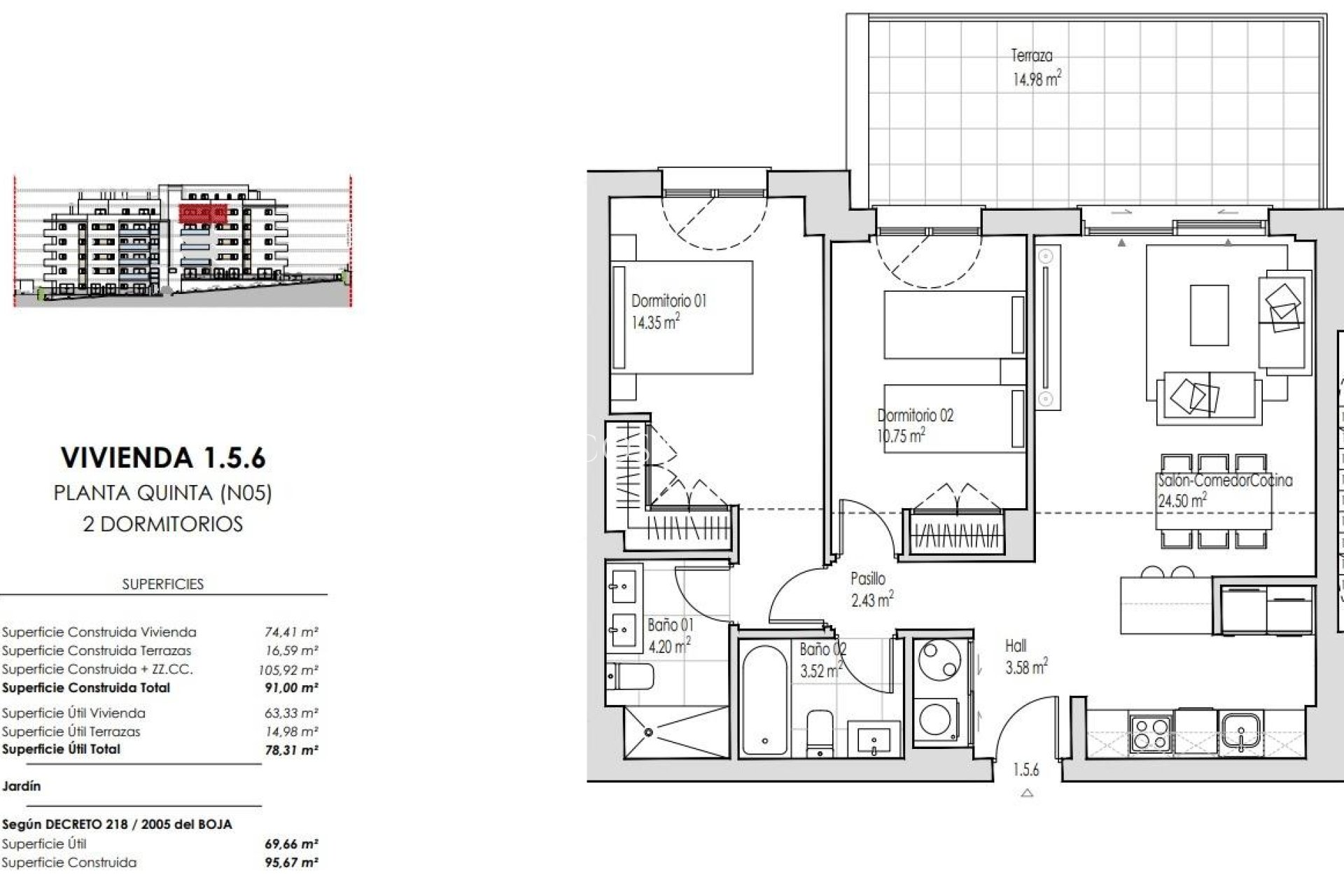
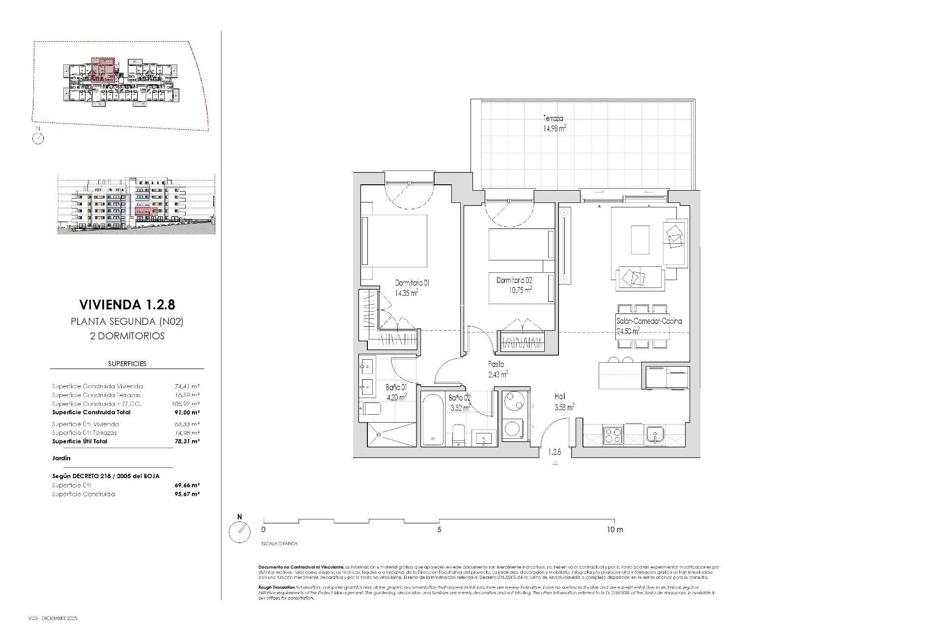
Moderne nieuwe appartementen met voorzieningen op het dak in Las Mesas Estepona Toplocatie in een van de meest veelbelovende wijken van Estepona Dit exclusieve nieuwe woonproject ligt in Las Mesas, een van de snelst groeiende en meest gewilde wijken van Estepona aan de Costa del Sol. Op slechts 1 km van het strand en op slechts enkele minuten van het stadscentrum, geniet het project van een strategische ligging, omgeven door voorzieningen, natuur, golfbanen en een uitstekend gastronomisch en cultureel aanbod. Estepona, bekend als de tuin van de Costa del Sol, combineert de charme van een traditioneel Andalusisch stadje met de energie van een moderne kosmopolitische stad. Eigentijdse woningen ontworpen voor mediterraan leven Het project bestaat uit 43 elegante appartementen met twee en drie slaapkamers, ontworpen om het hele jaar door comfort, stijl en natuurlijk licht te bieden. Grote ramen laten de mediterrane zon elke kamer vullen, terwijl de naadloze verbinding tussen de woonruimtes en terrassen het gevoel van ruimte en buitenleven versterkt. Vanuit uw woning geniet u van uitzicht op de bergen of de aangelegde tuinen van het complex, waardoor een rustige en privé sfeer ontstaat. Uitzonderlijke dakterras en gemeenschappelijke voorzieningen Een van de hoogtepunten van dit project is het indrukwekkende dakterras met een verwarmde jacuzzi en barbecuezone, ideaal om te ontspannen en te socializen terwijl u geniet van het weidse uitzicht. Bewoners kunnen ook gebruikmaken van een aangelegd zwembad, een fitnessruimte, een coworkingruimte, een sauna en een Turks bad. Deze zorgvuldig ontworpen ruimtes bevorderen het welzijn, de vrije tijd en een levendige gemeenschapslevensstijl. Hoogwaardige specificaties en optionele voorzieningen Alle woningen zijn voorzien van Italiaanse designkeukens die volledig zijn uitgerust met apparatuur, badkamers met wastafels, spiegels en doucheschermen, evenals een parkeerplaats en een berging. Appartementen op de begane grond en penthouses bieden de mogelijkheid om tegen meerprijs een privéminizwembad te installeren, wat extra comfort en exclusiviteit biedt. Uitstekende verbindingen en bezienswaardigheden in de buurt Las Mesas biedt uitstekende toegang tot de snelweg A7, waardoor u gemakkelijk langs de kust kunt reizen. Belangrijke afstanden zijn onder andere La Rada Beach 1 km, Estepona Marina 2 km, Estepona Old Town 1,5 km, verschillende golfbanen binnen 5 km, Puerto Banus 20 km, Marbella 30 km, Malaga Airport 80 km en Gibraltar Airport 45 km. Verzeker u vandaag nog van uw nieuwe woning in Estepona Dit project is een ideale keuze voor wie op zoek is naar een moderne woning dicht bij de zee met eersteklas voorzieningen op een van de beste locaties aan de Costa del Sol. Neem nu contact met ons op voor meer informatie of om een bezichtiging te regelen.