Sluit Sluit

Torrevieja · Playa de El Cura Apartments · Nieuwbouw Woningen

#Ref: NB-87561
€ 235.000
  • Gebouwd 60m2
  • Slaapkamers 1
  • Badkamers 1
  • Zwembad Ja

Torrevieja · Playa de El Cura Apartments · Nieuwbouw Woningen

Beschrijving

Moderne nieuwbouwappartementen in het hart van Torrevieja

Kenmerken

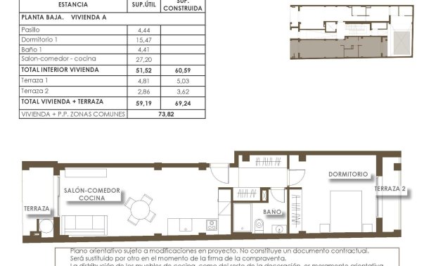
Slaapkamers: 1
Badkamers: 1
Gebouwd: 60m2
Oppervlakte : 51m2
Zwembad: Ja
Afstand naar het strand: 150 Mts.
Gemeenschappelijk zwembad
Omheind
Air Conditioning: Pre-Installed
Dichtbij scholen
Dichtbij commercieel centrum
Lift
Locatie: Kust
Dichtbij bushalte
Dichtbij speeltuin
Tweepersoons Slaapkamer: 1
Terras: 7 M2
Strand: 150 Meter
Ruimte
Bewoonbare oppervlakte: 51 m2

Plaats

Vraag om informatie

Neem contact op met Costa Group Estates

Responsable del tratamiento: VDM ESTATES GROUP SL, Finalidad del tratamiento: Gestión y control de los servicios ofrecidos a través de la página Web de Servicios inmobiliarios, Envío de información a traves de newsletter y otros, Legitimación: Por consentimiento, Destinatarios: No se cederan los datos, salvo para elaborar contabilidad, Derechos de las personas interesadas: Acceder, rectificar y suprimir los datos, solicitar la portabilidad de los mismos, oponerse altratamiento y solicitar la limitación de éste, Procedencia de los datos: El Propio interesado, Información Adicional: Puede consultarse la información adicional y detallada sobre protección de datos Aquí.
WhatsApp