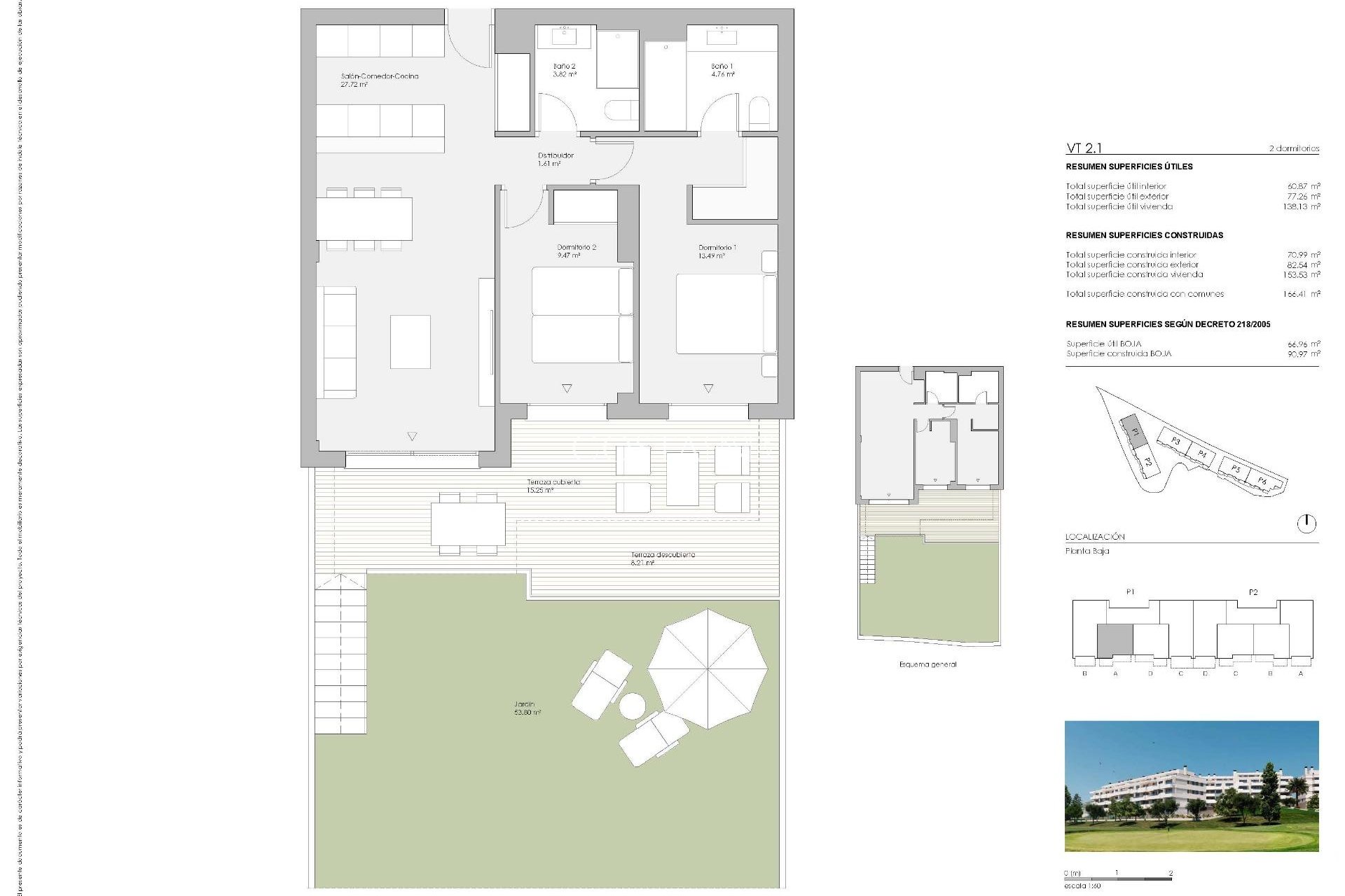
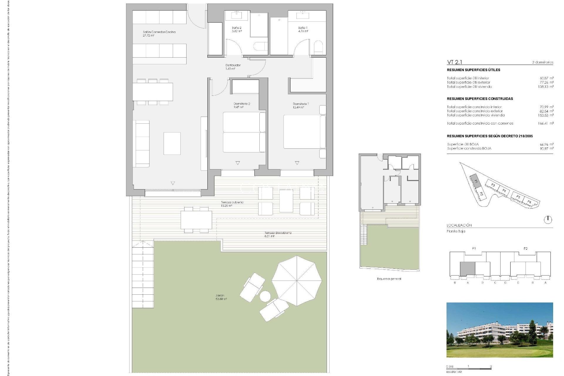
Moderne nieuwbouwappartementen in Mijas Golf, vlakbij golfbanen en stranden Exclusief woonproject met eersteklas voorzieningen Maak kennis met een uitzonderlijk nieuwbouwproject van 103 moderne woningen in Mijas Golf, ontworpen voor mensen die waarde hechten aan comfort, natuurlijk licht en eigentijdse elegantie. Dit exclusieve project biedt appartementen met 1, 2 en 3 slaapkamers met royale indelingen, grote ramen en hoogwaardige afwerkingen, waardoor een ideale balans wordt gecreëerd tussen functionaliteit en verfijnd wonen. Het complex wordt omgeven door een rustige natuurlijke omgeving en ligt naast Mijas Golf. Het biedt een ontspannen levensstijl met uitstekende toegang tot nabijgelegen kustplaatsen en voorzieningen. Lichte en ruime woningen met hoogwaardige afwerking Elk appartement is zorgvuldig ontworpen om natuurlijk licht te maximaliseren en een uitnodigende sfeer te bieden. De woningen zijn voorzien van ruime terrassen, open woonruimtes en hoogwaardige materialen. De belangrijkste kenmerken zijn: KÖMMERLING PVC-buitenkozijnen en dubbele beglazing Gemotoriseerde rolluiken in de woonkamer en slaapkamers Gepantserde voordeur Volledig ingerichte keuken met kwartswerkblad, softclose-kasten en BOSCH-inductiekookplaat, afzuigkap en oven Porcelanosa-tegels Airconditioning met domotica van het type Airzone Energieklasse A Resortachtige gemeenschappelijke ruimtes voor wellness en vrije tijd Het project biedt uitzonderlijke gemeenschappelijke ruimtes die zijn ontworpen voor ontspanning, recreatie en gezond leven. Gemeenschappelijke voorzieningen zijn onder andere: Centraal gelegen designzwembad omgeven door aangelegde tuinen en zonneterrassen Kinderspeelplaats vlakbij ontspanningsruimtes Uitgestrekte groene zones met wandelpaden en ontmoetingsplaatsen Volledig uitgeruste fitnessruimte, sauna en gemeenschappelijke ruimte Toplocatie vlakbij golf, stranden en voorzieningen Deze woonwijk ligt naast Mijas Golf en combineert rust en gemak. De lange zandstranden van Mijas en Fuengirola liggen op ongeveer 4 km afstand, terwijl dagelijkse voorzieningen, winkels en recreatiemogelijkheden op korte rijafstand liggen. Afstanden tot belangrijke bezienswaardigheden: Mijas Golf 0,3 km Centrum van Fuengirola 5 km Stranden 4 km Marbella 25 km (15 minuten) Málaga 35 km (30 tot 40 minuten) Luchthaven Málaga 30 km (25 minuten) Coín en Alhaurín el Grande 18 km Leef de levensstijl van de Costa del Sol Of het nu gaat om een permanente woning, een tweede huis of een slimme investering, dit nieuwe project in Mijas Costa biedt een ongeëvenaarde woonervaring. Verzeker uzelf van een plek in een van de meest gewilde gebieden van de Costa del Sol. Neem vandaag nog contact met ons op voor beschikbaarheid, plattegronden en rondleidingen.