Sluit Sluit

Mijas · Playa Marina Apartments · Nieuwbouw Woningen

#Ref: NB-59940
€ 473.500
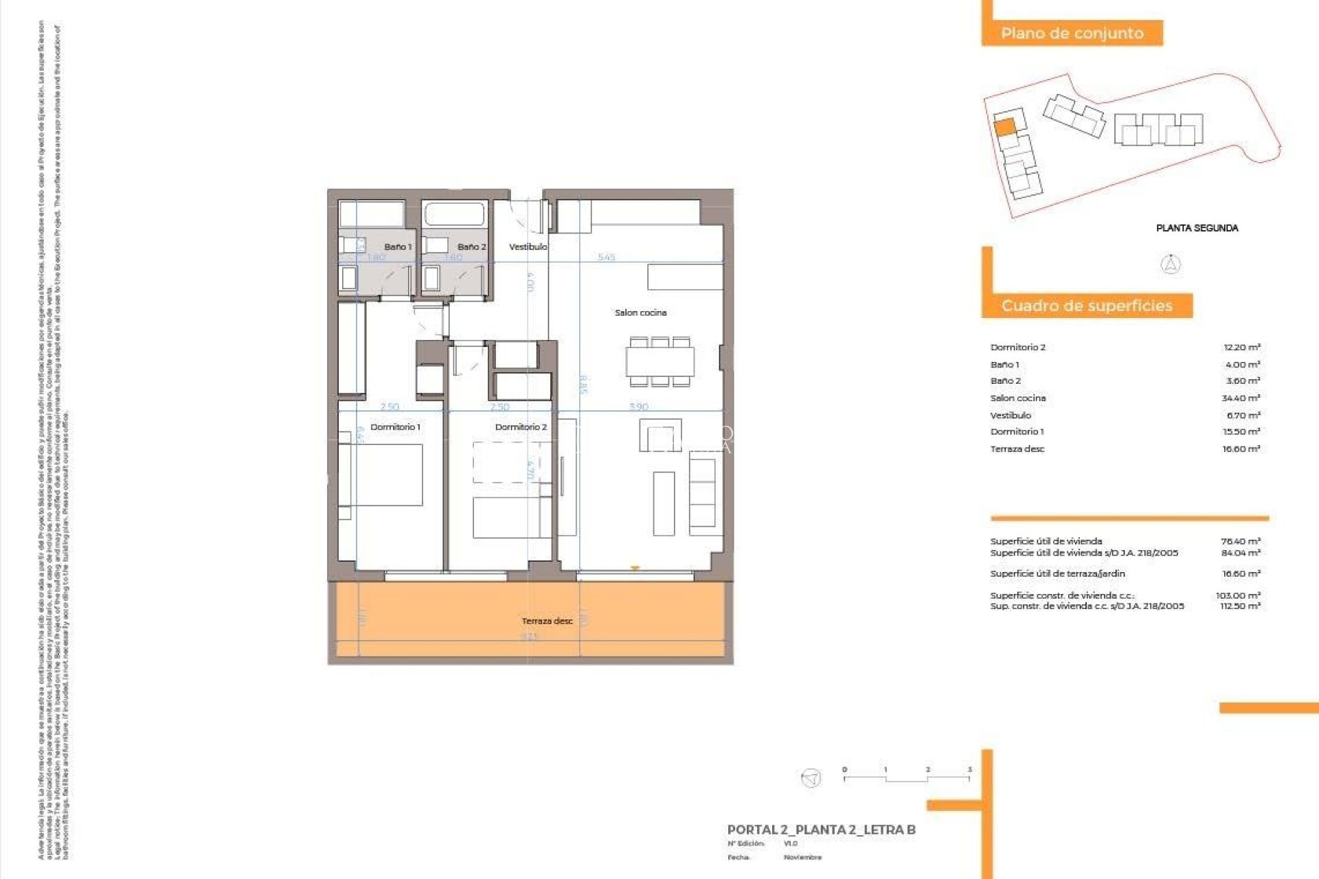
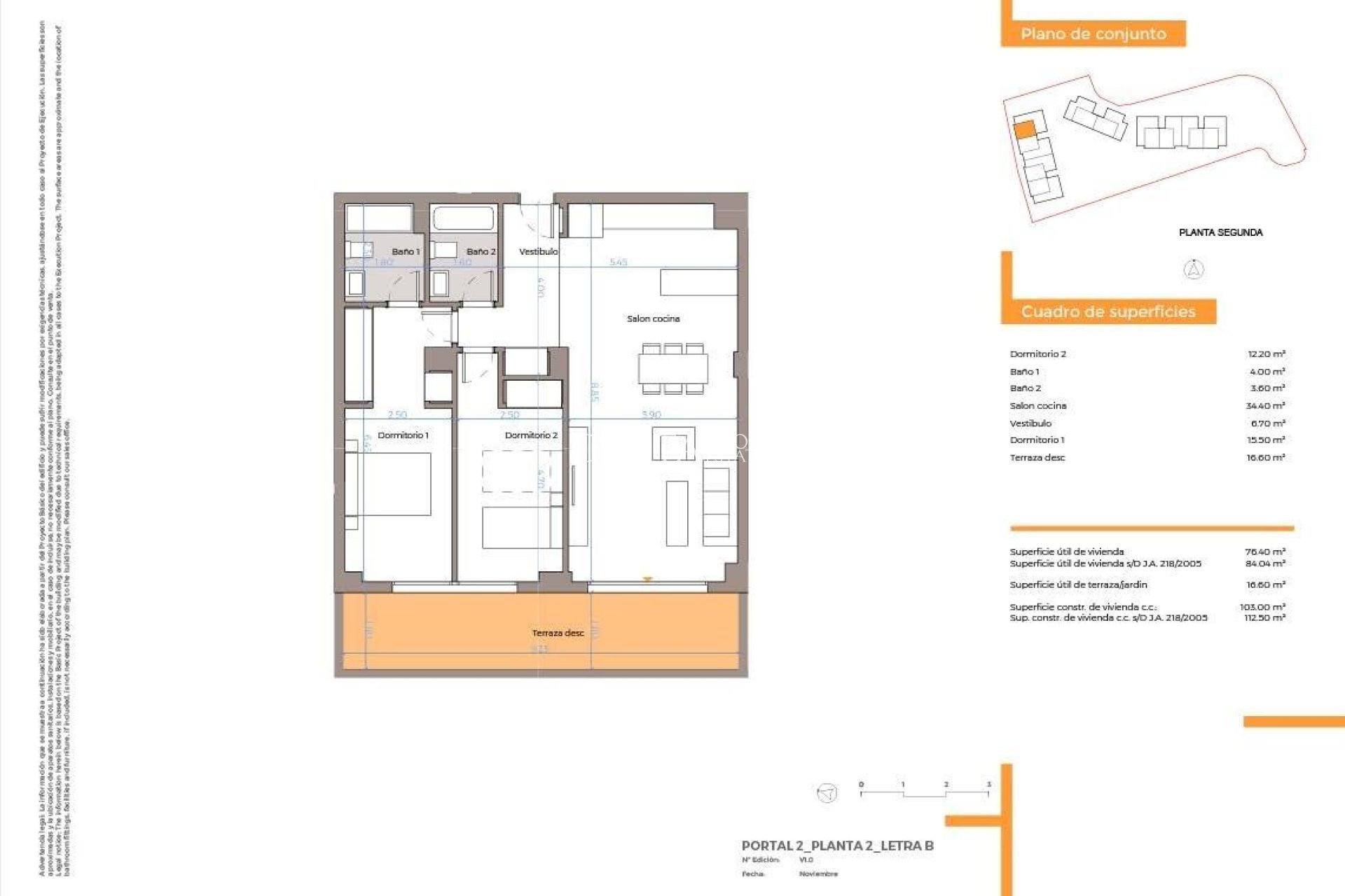
  • Gebouwd 112m2
  • Slaapkamers 2
  • Badkamers 2
  • Zwembad Ja

Mijas · Playa Marina Apartments · Nieuwbouw Woningen

Beschrijving

Nieuwbouwappartementen met uitzicht op zee in La Cala de Mijas

Kenmerken

Slaapkamers: 2
Badkamers: 2
Gebouwd: 112m2
Oppervlakte : 84m2
Zwembad: Ja
Afstand naar het strand: 150 Mts.
Lift
fitness
Terras: 16 M2
Bewoonbare oppervlakte: 84 m2
Strand: 150 Meter
Parkeerplaats
Storage / Trastero
Gemeenschappelijk zwembad
Omheind
Aantal parkeerplaatsen: 1
Locatie: Kust, Urbanisatie
Tweepersoons Slaapkamers: 2
Dichtbij scholen
Dichtbij commercieel centrum

Plaats

Vraag om informatie

Neem contact op met Costa Group Estates

Responsable del tratamiento: VDM ESTATES GROUP SL, Finalidad del tratamiento: Gestión y control de los servicios ofrecidos a través de la página Web de Servicios inmobiliarios, Envío de información a traves de newsletter y otros, Legitimación: Por consentimiento, Destinatarios: No se cederan los datos, salvo para elaborar contabilidad, Derechos de las personas interesadas: Acceder, rectificar y suprimir los datos, solicitar la portabilidad de los mismos, oponerse altratamiento y solicitar la limitación de éste, Procedencia de los datos: El Propio interesado, Información Adicional: Puede consultarse la información adicional y detallada sobre protección de datos Aquí.
WhatsApp