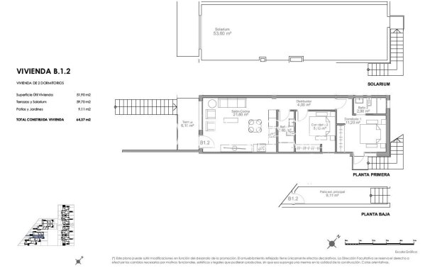
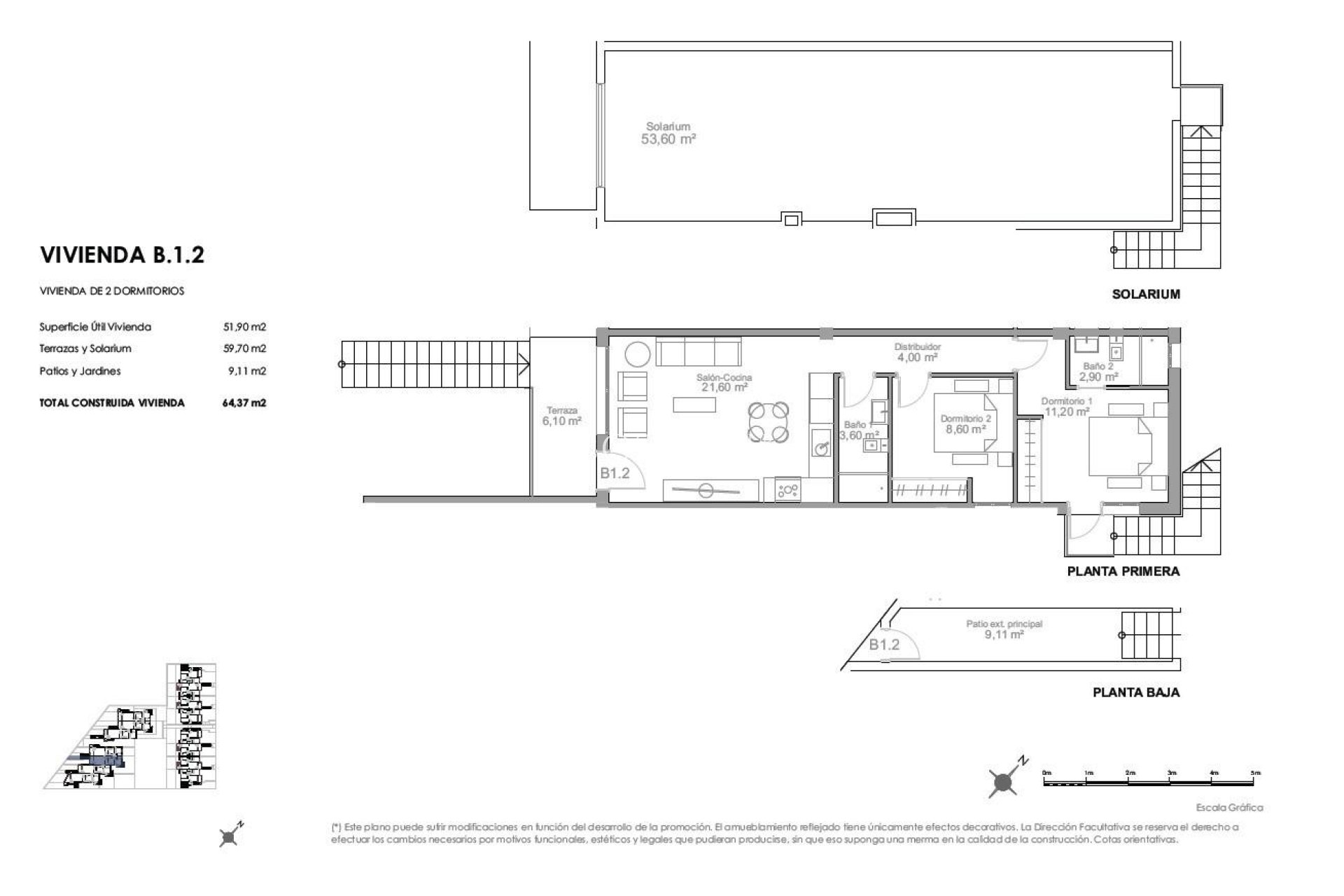
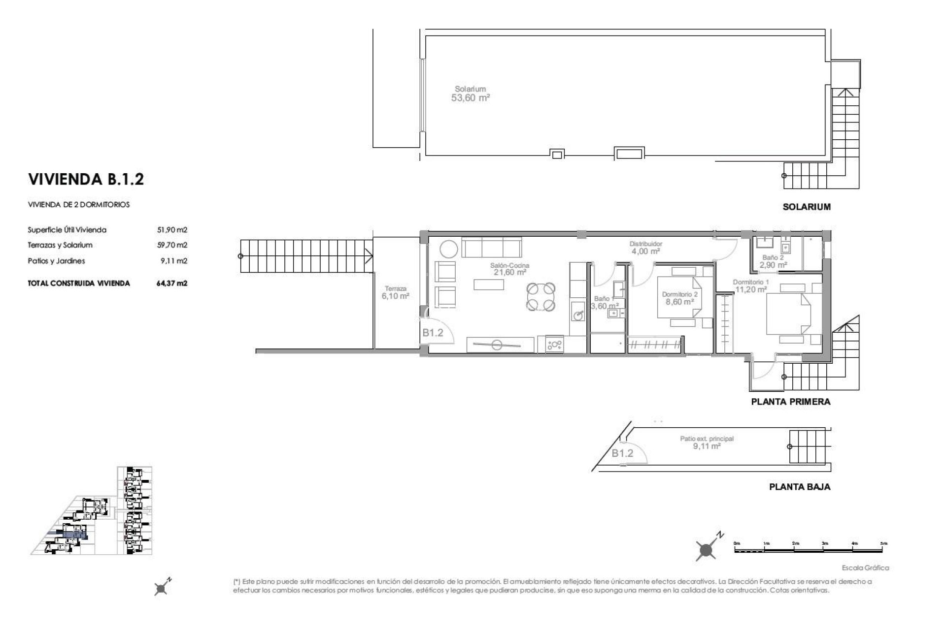
Nieuwbouwwoningen op slechts 200 meter van het strand in Puerto de Mazarrón Exclusief wonen aan de kust van Costa Cálida Maak kennis met een nieuw woonproject met moderne woningen in Puerto de Mazarrón, op slechts 200 meter van het prachtige Playa Negra. Dit project ligt in een van de meest gewilde kustgebieden van de regio Murcia en biedt een uitzonderlijke kans om te genieten van het mediterrane leven dicht bij de zee, essentiële voorzieningen en de natuurlijke omgeving. Puerto de Mazarrón staat bekend om zijn prachtige stranden, kristalheldere water, charmante jachthaven en ontspannen sfeer. Met uitstekende voorzieningen, recreatiemogelijkheden in de buitenlucht en een warm klimaat het hele jaar door, is het een ideale bestemming voor zowel permanent wonen als vakantie. Modern design en functionele indelingen Dit exclusieve project bestaat uit 30 moderne woningen met 2 slaapkamers en 1 of 2 badkamers, zorgvuldig ontworpen om comfort, stijl en efficiëntie te bieden. Het laagbouwcomplex omvat woningen op de begane grond met privéterrassen en tuinen, evenals woningen op de eerste verdieping met terrassen en privé-dakterrassen. De woningen beschikken over privé-parkeerplaatsen op het terrein of binnen de residentie. De woningen zijn zo ontworpen dat ze maximaal gebruik maken van natuurlijk licht, met open leefruimtes, grote ramen en hoogwaardige afwerkingen. De eerste fase biedt aanpasbare woningen met functionele indelingen die kunnen worden gepersonaliseerd om aan uw levensstijlbehoeften te voldoen. De woningen op de begane grond hebben een privétuin, een patio aan de achterzijde en een parkeerplaats op het perceel of in de gemeenschappelijke parkeergarage. De woningen op de bovenste verdieping hebben een eigen toegang op de begane grond, een terras op de eerste verdieping en een solarium op het dak, plus een toegewezen parkeerplaats. Optionele extra's zijn onder meer privézwembaden op de terrassen op de begane grond of jacuzzi's op de solariums. Hoogwaardige specificaties Elke woning is voorzien van Versterkte toegangsdeur Voorbereiding voor airconditioning Complete badkamers met meubilair, spiegel en douchewanden Buitenruimtes ontworpen voor barbecues, pergola's en chill-outruimtes Deze woonwijk biedt een veilige, gezinsvriendelijke en gevestigde omgeving, op loopafstand van supermarkten, scholen, medische voorzieningen, parken en het strand. Toplocatie in Puerto de Mazarrón Afstanden tot belangrijke bezienswaardigheden Playa Negra 0,2 km Jachthaven van Mazarrón 2 km Winkelcentrum Mazarrón Park 5 km Cartagena 35 km Murcia 70 km Luchthaven Murcia Corvera 45 km Golfbanen Camposol en Hacienda del Álamo 25-35 km Geniet van watersporten, wandelen en fietsen in de nabijgelegen Sierra de las Moreras en ontdek het beste van de Costa Cálida-levensstijl. Maak van de Middellandse Zee uw thuis Mis deze kans niet om een nieuwbouwwoning te kopen op slechts een steenworp afstand van het strand in Puerto de Mazarrón. Neem vandaag nog contact met ons op voor beschikbaarheid, details en bezichtigingsafspraken.