La Zenia Boulevard Shoppingcenter Orihuela Costa
La Zenia Boulevard, Calle Jade 2, Local 90 Alicante, Spain
+34 966 890 625 / +32 15 540 153
Marbella Golden Mile
Oasis Business Centre The Golden Mile
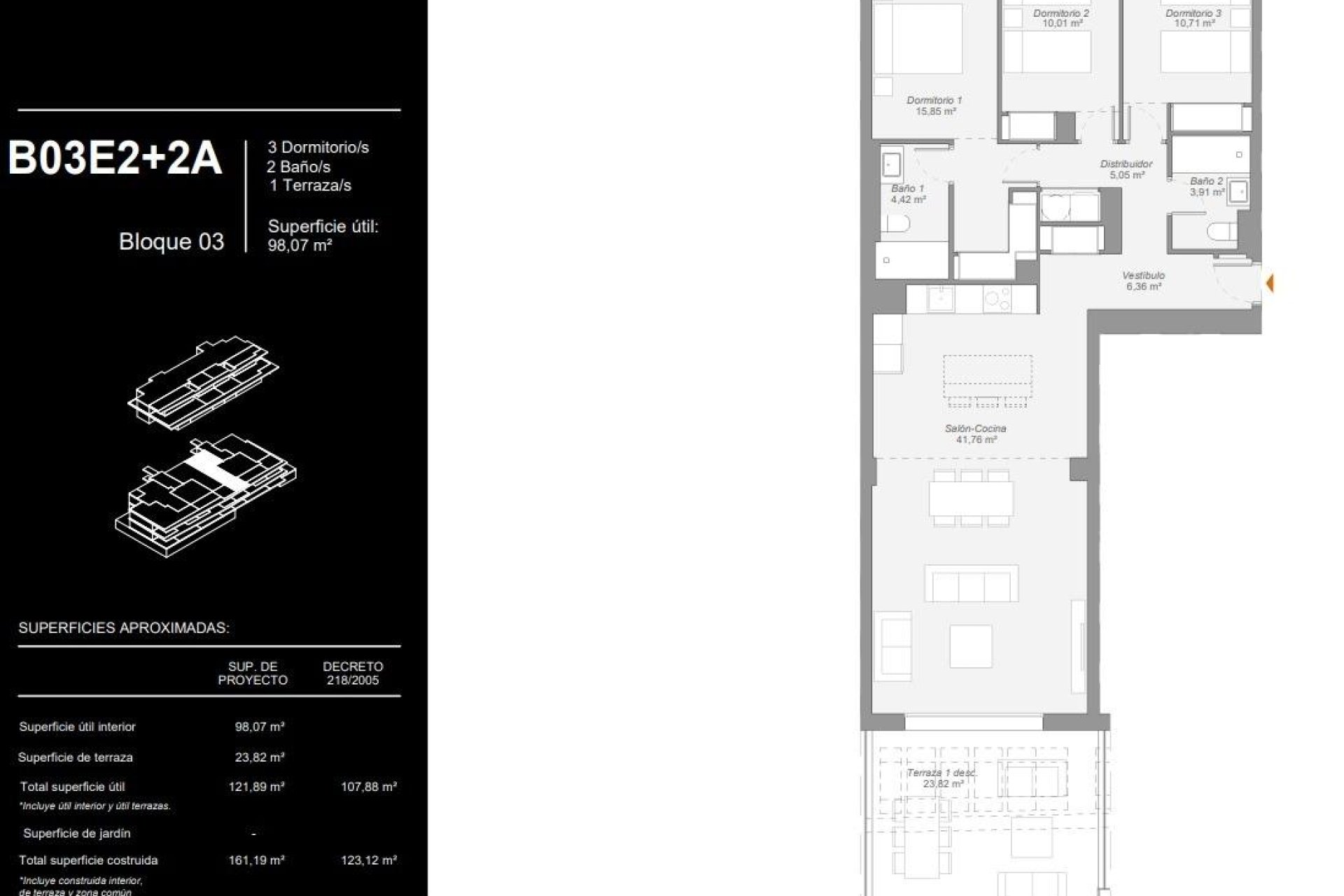
NEUBAU EINER WOHNANLAGE IN ESTEPONA Ein Projekt, das auf das Meer und die Berge blickt und dessen Architektur sich in die Umgebung einfügt, um einen eigenen Lebensraum zu schaffen, in dem die Sonne und das Mittelmeer den Lauf der Zeit markieren Die Anlage besteht aus 2- und 3-Schlafzimmer-Wohnungen mit großen Terrassen, Penthäusern und Erdgeschosswohnungen mit Garten. Unter den sehr kompletten Gemeinschaftseinrichtungen sind besonders die zwei Außenschwimmbäder, der Coworking Space, der voll ausgestattete Fitnessraum und die Sauna mit Duschbereich zu erwähnen. Wohnanlage in Estepona, einer der attraktivsten Ecken der Costa del Sol. Die Stadt hat sich dank ihrer Lebensqualität und dem breiten Angebot an Freizeit- und Lifestyle-Aktivitäten zu einem der begehrtesten Orte an der Costa del Sol entwickelt. Dennoch bleibt sie ihren Wurzeln treu und versprüht andalusischen Charme. Eine Fülle von hochwertigen Golfclubs in der Gegend rechtfertigt die Bezeichnung "Costa del Golf". Die prachtvolle Naturlandschaft ist der ideale Rahmen für eine Vielzahl von Outdoor-Sportarten zu Lande und zu Wasser. Darüber hinaus machen das unschlagbare Klima mit durchschnittlich 325 Sonnentagen im Jahr und die geschützte Lage diese Stadt zu einem Musterbeispiel für Lebensqualität in Spanien und Europa. Die Wohngegend verfügt über eine hervorragende Anbindung an die Hauptverkehrsstraßen der Provinz, so dass sie nur 10 Minuten von Puerto Banus und weniger als 45 Minuten vom Flughafen Málaga entfernt ist. Die Qualität der Strände, ihr Service und ihre hervorragende Erreichbarkeit wurden mit einer Rekordzahl blauer Flaggen ausgezeichnet.
Diese hier angegebenen Informationen unterliegen Fehlern und sind nicht Bestandteil eines Vertrages. Das Angebot kann ohne vorherige Ankündigung geändert oder zurückgezogen werden. Die Preise beinhalten keine Einkaufskosten.
BIV No 514.440 / API No A227 / RAICV:2827 | Immobilienmakler an der Costa Blanca un Costa del Sol | Englischer Immobilienmakler | CostaGroupEstates
La Zenia Boulevard Shoppingcenter Orihuela Costa
La Zenia Boulevard, Calle Jade 2, Local 90 Alicante, Spain
+34 966 890 625 / +32 15 540 153
Marbella Golden Mile
Oasis Business Centre The Golden Mile
© 2026 Costa Group Estates · Rechtlicher Hinweis · Privatsphäre · Cookies · Web-Karte · Entwurf & CRM: Mediaelx
Entwurf & CRM: Mediaelx
Zunächst einmal, vielen Dank für Ihre Kontaktaufnahme.
Zunächst einmal, vielen Dank für Ihre Kontaktaufnahme.
Wir haben eine Anfrage für einen Bericht erhalten, wenn Sie den Preis der Immobilie mit der Referenz senken: NB-40526
In der Zwischenzeit sehen Sie sich bitte diese Auswahl ähnlicher Objekte an, die für Sie von Interesse sein könnten: