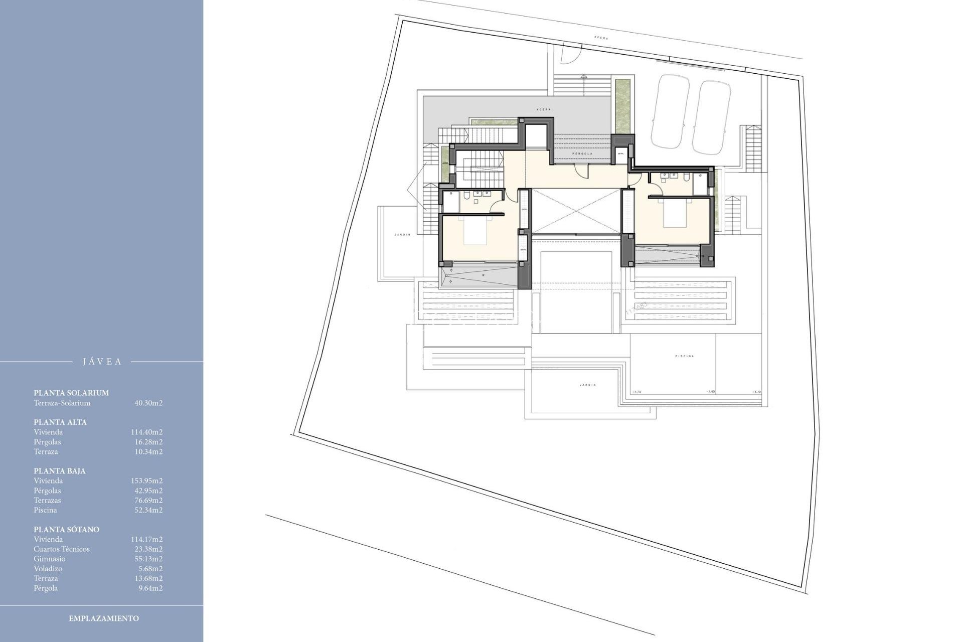
Luxuriöse Neubauvilla mit Meerblick in der Nähe des Strandes Granadella in Jávea Exklusive Villa in der prestigeträchtigen Gegend Granadella in Jávea Entdecken Sie eine außergewöhnliche Luxusvilla, die derzeit in der begehrten Gegend Granadella in Jávea an der nördlichen Costa Blanca gebaut wird. Inmitten einer ruhigen Naturlandschaft neben dem geschützten Waldpark und nur wenige Schritte von der berühmten Cala Granadella entfernt, bietet diese Immobilie eine seltene Kombination aus Privatsphäre, spektakulärem Meerblick und der Nähe zu einer der schönsten Buchten Spaniens. Javea ist bekannt für seine atemberaubende Küste, die charmante Altstadt und das ganzjährig hervorragende Klima. Die Stadt bietet ein pulsierendes Leben mit internationalen Restaurants, Yachthäfen, Golfplätzen und einer großen Auswahl an Outdoor-Aktivitäten. Die Mischung aus mediterranem Charme und modernen Annehmlichkeiten macht sie zu einem der begehrtesten Ziele an der Costa Blanca, sowohl für den dauerhaften Wohnsitz als auch für luxuriöse Ferienhäuser. Moderne Architektur mit großzügigen Wohnbereichen Diese elegante Designervilla steht auf einem großzügigen Grundstück von 925 m² und bietet eine beeindruckende Wohnfläche von ca. 677 m², verteilt auf drei Ebenen. Die zeitgenössische Architektur fügt sich nahtlos in die umgebende Naturlandschaft ein und maximiert gleichzeitig das natürliche Licht und den Panoramablick. Die Immobilie umfasst vier geräumige Schlafzimmer, fünf Badezimmer und eine Gästetoilette. Große, offen gestaltete Wohnbereiche gehen nahtlos in die Außenterrassen über und schaffen so ein helles und komfortables Wohnambiente, das ganz auf das moderne mediterrane Leben zugeschnitten ist. Zur Villa gehören außerdem ein privates Büro, ein voll ausgestatteter Fitnessraum, Abstellräume und überdachte Parkplätze für zwei Fahrzeuge. Ein Aufzug verbindet die verschiedenen Ebenen des Hauses und sorgt so für maximalen Komfort und Barrierefreiheit. Panoramablick auf das Meer und Leben im Freien Eines der beeindruckendsten Merkmale der Immobilie ist ihr Außenbereich. Die Villa bietet rund 140 m² offene Terrassen, die einen spektakulären Blick auf das Mittelmeer und die umliegenden Berge bieten. Der Infinity-Pool blickt auf die Küste und den nahegelegenen Strand Granadella und schafft so einen einzigartigen Rahmen, um sich zu entspannen und die natürliche Schönheit der Umgebung zu genießen. Der landschaftlich gestaltete Garten mit Bäumen und einem automatischen Bewässerungssystem unterstreicht die friedliche Atmosphäre der Immobilie zusätzlich. Hochwertige Ausstattung und Smart-Home-Technologie Die Villa wurde mit hochwertigen Materialien und den neuesten Bautechnologien errichtet, um Komfort, Sicherheit und Energieeffizienz zu gewährleisten. Infinity-Pool mit Meerblick Aufzug, der alle Ebenen verbindet Designer-Küche, ausgestattet mit NEFF-Geräten Fußbodenheizung im gesamten Anwesen Kanal-Klimaanlage mit unabhängigen AIRZONE-Thermostaten NIESSEN Free Home-Hausautomationssystem zur Steuerung von Beleuchtung und Jalousien Motorisierte Jalousien in der gesamten Villa Video-Gegensprechanlage und Vorinstallation für Alarmanlage Landschaftsgarten mit Bewässerungssystem Diese Ausstattungsmerkmale bieten ein modernes, komfortables und sicheres Umfeld, das für luxuriöses Wohnen konzipiert ist. Erstklassige Lage in der Nähe von Stränden und Annehmlichkeiten Cala Granadella 0,3 km Strand von Arenal 7 km La Sella Golf 18 km Denia 20 km Flughafen Alicante-Elche 100 km Flughafen Valencia 120 km Sichern Sie sich Ihre Luxusvilla in Jávea Diese außergewöhnliche Villa bietet zeitgenössisches Design, atemberaubenden Meerblick und eine erstklassige Lage in der Nähe eines der schönsten Strände an der Costa Blanca. Kontaktieren Sie uns noch heute, um weitere Informationen zu erhalten oder eine private Besichtigung zu vereinbaren und Ihr zukünftiges Luxushaus in Jávea zu entdecken. 513