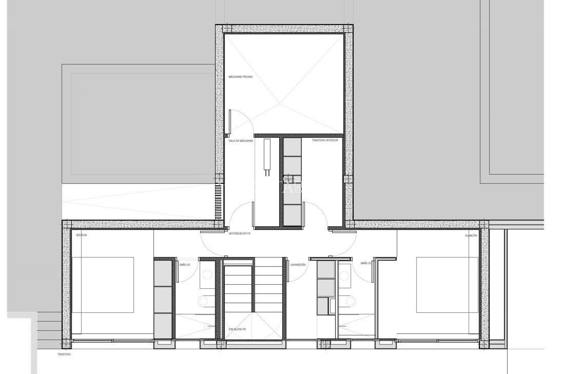
Bezugsfertige Neubauvilla mit Meerblick in La Alberca Polop Luxuriöse moderne Villa in natürlicher Berglandschaft Diese bezugsfertige, moderne Villa befindet sich in La Alberca, einer ruhigen Wohngegend von Polop, umgeben von Wald und Bergen. Dank ihrer erhöhten Lage bietet die Immobilie einen Panoramablick auf das Mittelmeer, die Berge und das historische Stadtzentrum von Polop. Die Villa bietet Privatsphäre, Ruhe und eine hervorragende Anbindung an die Küste und die umliegenden Städte. Polop ist ein charmantes Dorf in der Region Marina Baixa an der Costa Blanca, das für seinen traditionellen Charakter und seine natürliche Umgebung bekannt ist. Die Immobilie liegt in der Nähe aller Dienstleistungen in La Nucia, darunter Geschäfte, Restaurants, Sportzentren und Schulen, während die Strände und lebhaften Küstenstädte nur eine kurze Autofahrt entfernt sind. Großzügiger Grundriss über Hauptgeschoss, Keller und Solarium Die Villa verteilt sich auf ein Hauptgeschoss, ein Untergeschoss und ein Dachsolarium und bietet großzügigen Wohnraum und Flexibilität. Im Hauptgeschoss führt eine einladende Eingangshalle mit Einbauschrank zu zwei Schlafzimmern mit eigenem Bad, darunter eine Master-Suite mit hochschiebbaren Fenstertüren, die sich zu einem Juliette-Balkon und einer Terrasse öffnen. Der offene Wohn- und Essbereich ist nahtlos mit einer überdachten Pergola-Terrasse und einem privaten Salzwasser-Swimmingpool verbunden. Das Untergeschoss verfügt über zwei weitere Schlafzimmer mit eigenem Bad und großen Fenstern, ein flexibles Spielzimmer oder Kinozimmer mit Wasser- und Stromanschlüssen für einen Barbereich, einen voll ausgestatteten Waschraum mit Haier-Geräten und zwei technische Lagerräume. Das Solarium auf dem Dach bietet einen weitläufigen Außenbereich mit Panoramablick auf das Meer und ist für die zukünftige Installation von Sonnenkollektoren vorbereitet. Eine Außenküche, mehrere Abstellräume und ein mediterran gestalteter Garten mit automatischer Bewässerung vervollständigen den Außenbereich. Hochwertige Ausstattung und Energieeffizienz Diese Villa zeichnet sich durch ihre hochwertige Ausstattung und moderne Installationen aus, darunter: Zentrale Kücheninsel mit integrierten BOSCH-Geräten Naturstein-Arbeitsplatten im Innen- und Außenbereich Vorinstallation für Fußbodenheizung Aerothermisches Klimatisierungssystem von Mitsubishi Energieeffizienzklasse A Vorinstallation für Smart-Home-System Salzwasser-Swimmingpool mit optionaler Heizung Privater Parkplatz für zwei Fahrzeuge Große Fenster mit Sonnenschutzglas maximieren das natürliche Licht und sorgen gleichzeitig für Komfort und Sicherheit. Ausgezeichnete Lage und Entfernungen Zentrum von Polop 2 km La Nucia 4 km Benidorm 12 km Altea 10 km Strände 10 km Villaitana Golf 14 km Flughafen Alicante 65 km Sichern Sie sich Ihr Traumhaus in Polop Diese außergewöhnliche, bezugsfertige Villa vereint Privatsphäre, Design und Panoramablick in einer der attraktivsten Regionen im Landesinneren der Costa Blanca. Kontaktieren Sie uns noch heute, um einen privaten Besichtigungstermin zu vereinbaren und diese Luxusvilla in La Alberca Polop zu Ihrem neuen Zuhause zu machen. 513