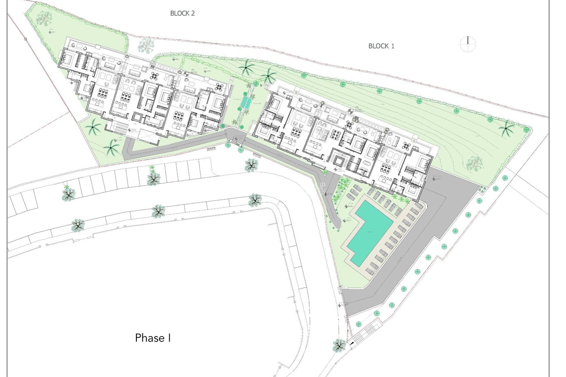
Ekskluzywna nowa inwestycja mieszkaniowa w Aloha Golf, Nueva Andalucía Marbella Luksusowe życie w sercu Nueva Andalucía Odkryj tę ekskluzywną nową inwestycję mieszkaniową w Aloha Golf, jednej z najbardziej prestiżowych dzielnic Nueva Andalucía w Marbelli. Otoczona światowej klasy polami golfowymi i położona zaledwie kilka minut od Złotej Mili Marbelli i Puerto Banús, ta butikowa inwestycja oferuje idealne połączenie elegancji, prywatności i śródziemnomorskiego stylu życia. Nowoczesne apartamenty i penthouse'y Osiedle obejmuje luksusowe apartamenty z 2 i 3 sypialniami, penthouse'y i dwupoziomowe penthouse'y w bezpiecznym, ogrodzonym kompleksie. Pierwsza faza obejmuje tylko 16 rezydencji rozmieszczonych w dwóch niskich budynkach, co zapewnia ekskluzywność i spokój. Apartamenty na parterze z prywatnymi ogrodami, które można dostosować do własnych potrzeb Apartamenty na pierwszym piętrze z przestronnymi tarasami Penthouse'y z prywatnymi basenami na dachu i panoramicznym widokiem Najwyższa jakość i wykończenie Każdy dom został zaprojektowany zgodnie z najwyższymi standardami, łącząc komfort z najnowocześniejszą technologią. Wyposażenie obejmuje: System aerotermiczny do podgrzewania wody i ogrzewania podłogowego Klimatyzacja kanałowa System audio Sonos Designerskie kuchnie z lakierowanymi szafkami i sprzętem AGD marki Miele Drzwi od podłogi do sufitu Wyjątkowe udogodnienia Mieszkańcy będą mogli korzystać z szerokiej gamy udogodnień przeznaczonych do wypoczynku, relaksu i dobrego samopoczucia: Zewnętrzny basen z ogrodami krajobrazowymi Kryty basen z podgrzewaną wodą, siłownią i spa Strefa coworkingowa i salonik Usługi concierge Zewnętrzny system monitoringu wizyjnego Doskonała lokalizacja w Marbelli Osiedle jest idealnie położone w pobliżu klubu golfowego Aloha Golf Club i międzynarodowej szkoły Aloha International School, z przepięknym widokiem na górę La Concha i Morze Śródziemne. Okolica oferuje łatwy dostęp do plaż, centrów handlowych, międzynarodowych szkół i obiektów sportowych. Centrum Marbelli: 6 km Puerto Banús: 4 km Estepona: 30 km Sotogrande: 55 km Międzynarodowe lotnisko w Maladze: 58 km Styl życia w Marbelli Marbella jest jednym z najbardziej ekskluzywnych miejsc na Costa del Sol, oferującym ponad 300 słonecznych dni w roku, piaszczyste plaże, luksusowe sklepy, wyśmienitą kuchnię i bogate życie kulturalne. Inwestycja ta stanowi doskonałą okazję, aby cieszyć się wszystkim, co Marbella ma do zaoferowania, mieszkając w spokojnym i uprzywilejowanym otoczeniu. Skontaktuj się z nami już dziś, aby umówić się na prywatną wizytę i zapewnić sobie nowy luksusowy dom w Aloha Golf, Nueva Andalucía.