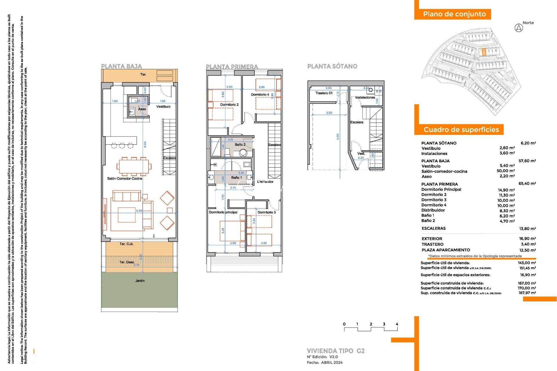
Maisons mitoyennes et maisons jumelées d'angle neuves à La Cala de Mijas Complexe résidentiel fermé exclusif sur la Costa del Sol Ce complexe résidentiel fermé moderne est idéalement situé dans l'un des quartiers les plus prisés de la Costa del Sol, avec d'excellentes connexions à l'autoroute A 7 Costa del Sol et un accès rapide à l'autoroute à péage AP 7. Le complexe offre intimité, sécurité et commodité, ce qui en fait un choix idéal pour y vivre à l'année ou pour y passer ses vacances. Son emplacement stratégique permet aux résidents d'être à proximité de Marbella, Puerto Banus et Malaga, tout en profitant d'un environnement résidentiel paisible près de la mer. Maisons modernes avec des agencements spacieux et vue sur la mer Le projet comprend 68 maisons de ville et maisons jumelées d'angle de haute qualité, avec 3 ou 4 chambres. Les propriétés ont été soigneusement conçues pour offrir des agencements équilibrés, des espaces de vie ouverts et de généreux espaces extérieurs tels que des terrasses, des jardins privés ou des solariums. Certaines maisons comprennent un sous-sol avec parking privé, débarras ou espace de vie, tandis que d'autres offrent un parking en surface pratique. Toutes les maisons bénéficient d'une orientation sud et beaucoup jouissent d'une vue imprenable sur la mer Méditerranée. Finitions de haute qualité et confort contemporain Chaque maison est équipée de spécifications haut de gamme pour garantir confort et modernité. Les cuisines sont entièrement équipées avec des appareils intégrés et un design épuré et contemporain. Les salles de bains comprennent des meubles-lavabos, des miroirs, des parois de douche et le chauffage au sol. Les propriétés disposent également d'une porte d'entrée renforcée et d'un système de climatisation centralisé installé dans toute la maison. Certaines maisons comprennent une mini-piscine privée, vous permettant de profiter des mois d'été dans le confort de votre propre maison. Espaces communs de style resort Les résidents peuvent profiter d'une gamme exceptionnelle d'installations communes conçues pour la détente et le bien-être. Le complexe comprend des jardins paysagers, une grande piscine commune, une salle de sport, un sauna, un spa et un espace de détente, créant une atmosphère de resort idéale pour socialiser ou se détendre tout au long de l'année. Emplacement privilégié à proximité de la plage, du golf et des services Le complexe est situé à moins de 2 km de la plage et à 7 minutes à pied des services essentiels tels que supermarchés, restaurants, magasins, centre de santé, installations de loisirs et plusieurs terrains de golf renommés. Distances clés vers les points d'intérêt Centre historique de Marbella : 15 km Port de plaisance de Puerto Banus : 20 km Aéroport international de Malaga : 45 km Gare ferroviaire Maria Zambrano : 30 km Terrains de golf les plus proches : 2 km Votre nouvelle maison sur la Costa del Sol vous attend Découvrez la combinaison parfaite entre un design moderne, un emplacement exceptionnel et une qualité de vie élevée. Contactez-nous dès aujourd'hui pour organiser une visite et acquérir votre nouvelle maison près de Marbella et de la côte méditerranéenne.