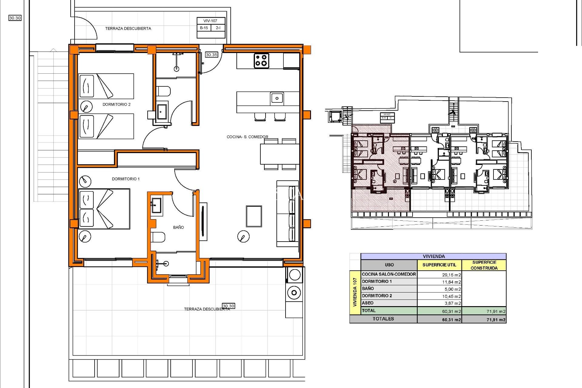
Appartements neufs avec vue sur la mer à Xeresa, Costa Blanca Nord Complexe résidentiel moderne avec vue panoramique Découvrez un nouveau complexe résidentiel exceptionnel dans une communauté privée fermée à Xeresa, proposant des appartements de 1, 2 et 3 chambres avec 1 ou 2 salles de bains et une vue imprenable. Chaque logement dispose d'une terrasse spacieuse de plus de 15 m2, offrant une vue panoramique sur les orangeraies, les montagnes environnantes ou la mer Méditerranée au loin. Conçu pour offrir confort, luminosité et environnement naturel, ce complexe est idéal pour ceux qui recherchent un style de vie paisible à proximité de la côte. Emplacement privilégié à proximité des plages et des services À seulement 3 km de la plage et à 1 km du charmant village de Xeresa, les résidents bénéficient d'un accès facile aux commerces, cafés et services essentiels. La gare de Xeraco, située à 3 km, offre des liaisons directes vers la ville de Valence, tandis que la ville côtière très prisée de Gandia se trouve à moins de 5 km du complexe et propose des centres commerciaux, des restaurants, des installations de loisirs et un magnifique port de plaisance. Des logements de haute qualité conçus pour le confort et la lumière Tous les appartements sont conçus de manière à ce que les pièces à vivre principales bénéficient de la lumière naturelle et d'une vue sur l'extérieur. L'agencement ouvert agrandit l'espace et crée une atmosphère moderne et harmonieuse, idéale pour profiter de la vie méditerranéenne. Les logements comprennent un parking et un débarras, un ascenseur, la pré-installation de la climatisation, une cuisine équipée avec plaque à induction, hotte aspirante, four et lave-vaisselle, ainsi que des finitions Porcelanosa haut de gamme. Des équipements communautaires de style resort Les résidents peuvent profiter de trois piscines spectaculaires, dont une avec des cascades et une autre piscine tropicale avec des fonctions d'hydromassage. La communauté offre également de magnifiques jardins paysagers avec des sentiers de promenade, une salle de sport entièrement équipée avec des machines de pointe, un club social polyvalent, des espaces de détente avec des chaises longues, des douches et des parasols, ainsi que de grands espaces verts conçus pour les loisirs et le bien-être. Distances par rapport aux points d'intérêt Plage 3 km Centre du village de Xeresa 1 km Gare de Xeraco 3 km Gandia 5 km Ville de Valence 60 km Aéroport de Valence 70 km Marina de Gandia 6 km Profitez de la vie méditerranéenne dans la nature et près de la mer Découvrez une opportunité exceptionnelle d'acquérir une maison moderne avec vue sur la mer ou la montagne dans un cadre paisible mais bien desservi. Contactez-nous dès aujourd'hui pour obtenir plus d'informations ou pour organiser une visite et acquérir votre nouvelle maison à Xeresa.