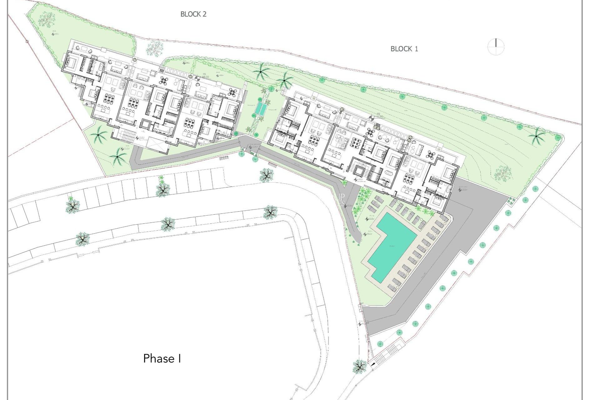
Nouveau complexe résidentiel exclusif à Aloha Golf, Nueva Andalucía Marbella Une vie luxueuse au cœur de Nueva Andalucía Découvrez ce nouveau complexe résidentiel exclusif à Aloha Golf, l'un des quartiers les plus prestigieux de Nueva Andalucía, à Marbella. Entouré de terrains de golf de classe mondiale et à quelques minutes seulement du Golden Mile et de Puerto Banús, ce projet boutique offre un mélange parfait d'élégance, d'intimité et de style de vie méditerranéen. Appartements et penthouses modernes La communauté comprend des appartements de luxe de 2 et 3 chambres, des penthouses et des duplex-penthouses au sein d'un complexe sécurisé et fermé. La première phase comprend seulement 16 résidences réparties dans deux immeubles de faible hauteur, garantissant exclusivité et tranquillité. Appartements au rez-de-chaussée avec jardins privés personnalisables Appartements au premier étage avec terrasses spacieuses Penthouses avec piscines privées sur le toit et vues panoramiques Qualités et finitions haut de gamme Chaque logement est conçu selon les normes les plus élevées, alliant confort et technologie de pointe. Les caractéristiques comprennent : Système aérothermique pour l'eau chaude et le chauffage au sol Climatisation entièrement canalisée Système audio Sonos Cuisines design avec armoires laquées et appareils électroménagers Miele Portes du sol au plafond Équipements communautaires exceptionnels Les résidents pourront profiter d'un large éventail d'installations conçues pour les loisirs, la détente et le bien-être : Piscine extérieure avec jardins paysagers Piscine intérieure chauffée avec salle de sport et spa Espace de coworking et salon Service de conciergerie Système de vidéosurveillance extérieur Emplacement privilégié à Marbella Cette résidence est idéalement située à côté du club de golf Aloha et de l'école internationale Aloha, avec une vue imprenable sur la montagne La Concha et la mer Méditerranée. La région offre un accès facile aux plages, aux centres commerciaux, aux écoles internationales et aux installations sportives. Centre de Marbella : 6 km Puerto Banús : 4 km Estepona : 30 km Sotogrande : 55 km Aéroport international de Malaga : 58 km Le style de vie à Marbella Marbella est l'une des destinations les plus exclusives de la Costa del Sol, avec plus de 300 jours de soleil par an, des plages de sable fin, des boutiques de luxe, des restaurants raffinés et une scène culturelle dynamique. Ce projet immobilier offre l'occasion idéale de profiter de tout ce que Marbella a à offrir tout en vivant dans un environnement serein et privilégié. Contactez-nous dès aujourd'hui pour organiser une visite privée et acquérir votre nouvelle maison de luxe à Aloha Golf, Nueva Andalucía.