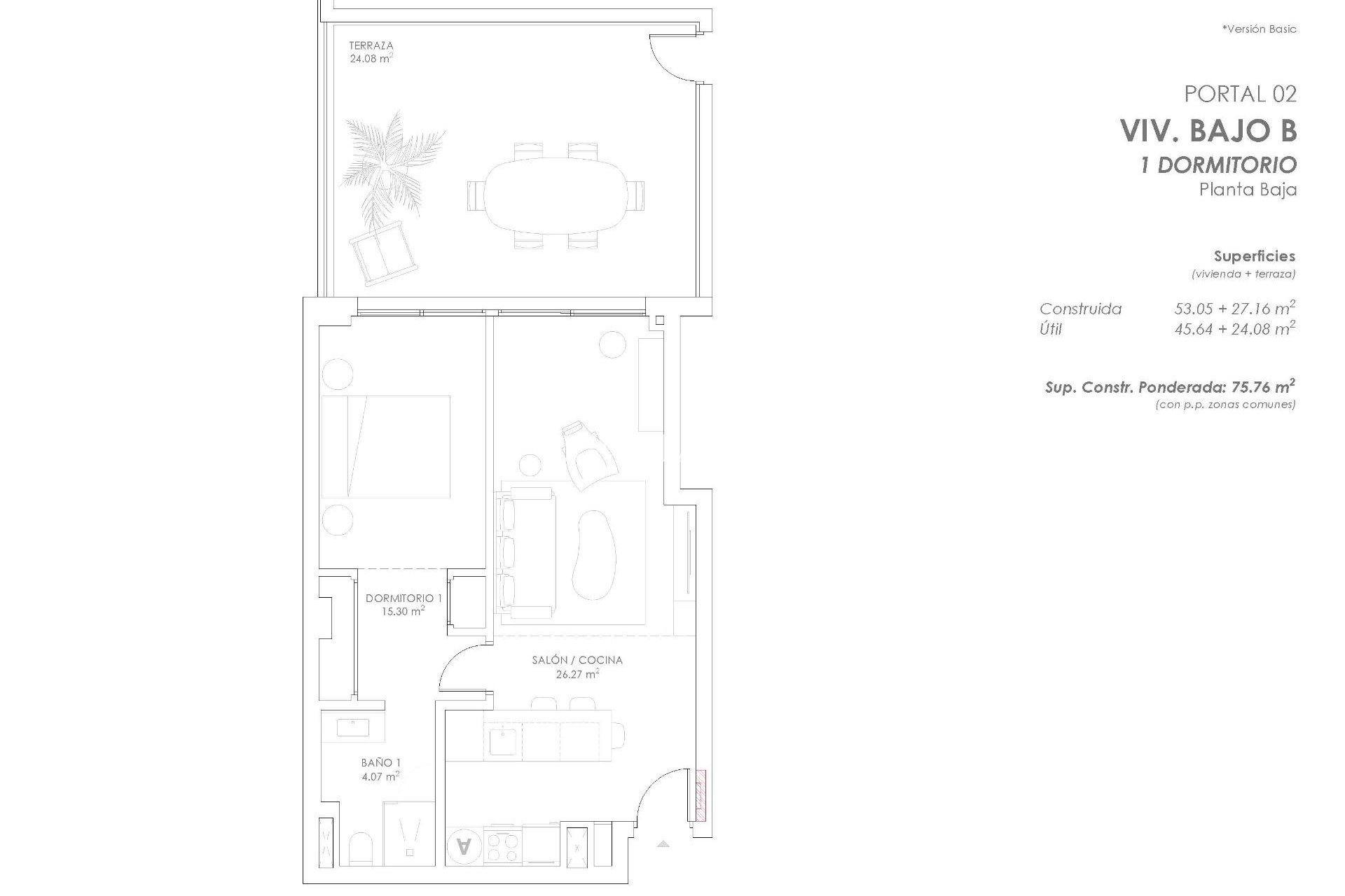
Appartements neufs à Los Pacos, Fuengirola – Un style de vie balnéaire sur la Costa del Sol Résidence exclusive dans un emplacement privilégié Découvrez un nouveau style de vie au cœur de Los Pacos, à Fuengirola, avec ce complexe exclusif de 218 appartements modernes comprenant 1, 2 et 3 chambres. Conçues selon le concept de « vie de villégiature », ces maisons allient confort, fonctionnalité et atmosphère détendue, à seulement 1,5 km de la plage et à 5 minutes en voiture. Los Pacos est l'un des quartiers les plus cosmopolites et les plus prisés de Fuengirola. Il offre d'excellentes liaisons routières vers le centre-ville, la ville de Malaga, l'aéroport international de Malaga et le reste de la Costa del Sol. À proximité, vous trouverez les plages de sable de Carvajal et Los Boliches, ainsi que tous les services quotidiens, notamment des écoles, des centres sportifs, des supermarchés, des restaurants, des espaces verts et les transports publics. Des logements lumineux et fonctionnels Chaque appartement est conçu pour maximiser la lumière naturelle, avec des intérieurs spacieux, des agencements ouverts et de grandes terrasses. Choisissez parmi différents agencements en fonction de vos besoins, que vous recherchiez une résidence principale, une maison de vacances ou une opportunité d'investissement. Pour une touche de luxe supplémentaire, certaines terrasses offrent la possibilité d'ajouter un jacuzzi privé. Équipements modernes et efficacité énergétique Ces logements sont construits avec des finitions de haute qualité et des systèmes durables : Eau chaude et climatisation aérothermiques Cuisines entièrement équipées avec appareils électroménagers Salles de bains avec meubles, miroir, éclairage et parois de douche Porte d'entrée renforcée Place de parking et débarras inclus Espaces communs exceptionnels Le complexe a été conçu pour offrir confort et loisirs à toute la famille, avec : Piscine pour adultes et enfants Jardins paysagers avec des plantes à faible consommation d'eau Salle de sport entièrement équipée Sauna et salle de bien-être Espace de coworking, idéal pour le télétravail Buanderie commune Distances par rapport aux principaux points d'intérêt : Plage : 1,5 km Centre-ville de Fuengirola : 3 km Aéroport international de Malaga : 20 km Marbella : 25 km Parcours de golf : 5 à 10 km Puerto Deportivo de Fuengirola : 4 km Votre maison idéale sur la Costa del Sol Avec plus de 320 jours de soleil par an, Fuengirola est l'un des meilleurs endroits pour profiter du style de vie méditerranéen. Des plages de sable et des parcours de golf à la vie culturelle animée et aux excellents restaurants, tout est à portée de main.