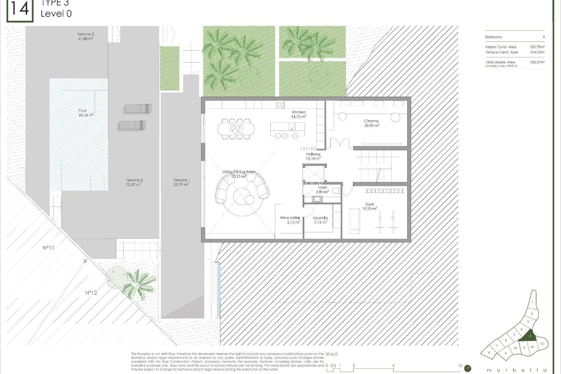
Luxury New Build Villas for Sale in Elviria-Marbella East Near the Beach Exclusive Villas in One of Marbella Most Prestigious Areas Discover an exclusive collection of 14 luxury new build villas located in Elviria, one of the most desirable residential areas of Marbella on the Costa del Sol. Surrounded by rolling pine covered hills and natural landscapes, these elegant homes combine timeless Andalusian architecture with modern Mediterranean living. Elviria is known for its peaceful environment, beautiful beaches and excellent services. The area offers a wide selection of international schools, golf courses, beach clubs, restaurants and shopping facilities. At the same time it provides quick access to Marbella town center and other major destinations along the Costa del Sol, making it a highly sought after location for both permanent residence and luxury holiday homes. Elegant Architecture and Spacious Contemporary Design Each villa has been carefully designed to create a bright and sophisticated living environment. The architecture combines elegant white facades with natural stone details and expansive windows that allow natural light to fill the interiors throughout the day. The villas offer generous plots of over 1100 m2 and spacious interiors distributed over two levels. Each home includes four bedrooms, four bathrooms and one guest toilet, providing comfort and privacy for residents and guests alike. The open plan living and dining areas flow seamlessly onto large terraces, landscaped gardens and private infinity pools. This design creates a perfect indoor outdoor lifestyle, ideal for relaxing, entertaining and enjoying the Mediterranean climate all year round. Luxury Features and High Quality Finishes These villas are equipped with premium features designed to enhance comfort, convenience and sustainability. Private infinity swimming pool and landscaped garden Spacious terraces with open views Private gym in selected villas Private cinema room in selected residences Elevator for convenient access between floors in some units Double private parking spaces Energy efficient design with solar panels Electric vehicle charging point The master suites are designed as elegant retreats with spacious dressing areas and spa inspired bathrooms that add a sense of luxury to everyday living. Prime Location Near Beaches Golf and Marbella Lifestyle Nikki Beach Marbella 2.5 km Playa de Elviria 2.3 km Santa Maria Golf Club 3 km Marbella town center 10 km Malaga Costa del Sol Airport 40 km The area also offers quick access to renowned beach clubs, fine dining restaurants and luxury marinas such as Puerto Banus. Discover Luxury Living in Elviria Marbella These exceptional villas offer privacy, elegance and a privileged location in Marbella East. Contact us today to receive more information or arrange a private viewing and secure your luxury villa in Elviria. 513