Close Close
Costa Group Estates

La Zenia Boulevard Shoppingcenter Orihuela Costa

La Zenia Boulevard, Calle Jade 2, Local 90 Alicante, Spain

+34 966 890 625 / +32 15 540 153

Marbella Golden Mile

Oasis Business Centre The Golden Mile

+34 966 890 625 / +34 643 057 719

info@costagroupestates.com

Vera · Vera Playa Apartments · New Build

#Ref: NB-62229
€ 240.450
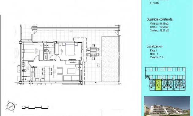
  • Built 64m2
  • Bedrooms 2
  • Bathrooms 2
  • Pool Yes

Vera · Vera Playa Apartments · New Build

Description

New Build Apartments with Sea Views in Vera Playa, Almería

Features

Bedrooms: 2
Bathrooms: 2
Built: 64m2
Usable: 60m2
Pool: Yes
Distance to beach: 700 Mts.
Communal Pool
Gated
Number of Parking Spaces: 1
Location: Coastal, Urbanisation
Double Bedrooms: 2
Near Schools
Near Commercial Center
Elevator/Lift
Beach: 700 Meters
Views: Sea
Useable Build Space: 60 Msq.
Terrace: 61 Msq.
Furnished
Parking - Space
Storage / Trastero

Location

Ask for info

Contact with Costa Group Estates

Responsable del tratamiento: VDM ESTATES GROUP SL, Finalidad del tratamiento: Gestión y control de los servicios ofrecidos a través de la página Web de Servicios inmobiliarios, Envío de información a traves de newsletter y otros, Legitimación: Por consentimiento, Destinatarios: No se cederan los datos, salvo para elaborar contabilidad, Derechos de las personas interesadas: Acceder, rectificar y suprimir los datos, solicitar la portabilidad de los mismos, oponerse altratamiento y solicitar la limitación de éste, Procedencia de los datos: El Propio interesado, Información Adicional: Puede consultarse la información adicional y detallada sobre protección de datos Aquí.
WhatsApp